Planning Commission to Hold Public Hearings on Gateway Data Center Project, Proposed Mixed-Use Development on Princess Anne Street
Both hearings will take place at the next meeting of the Planning Commission on December 10.
By Adele Uphaus
MANAGING EDITOR AND CORRESPONDENT
Email Adele

After voting unanimously in July to recommend denial of the Gateway data center project, the Fredericksburg Planning Commission is scheduled to take up the matter again next month.
There will be a public hearing at the Commission’s December 10 meeting on a resubmitted application for a rezoning and special use permit paving way for the project, which proposes to construct 2.1 million square feet of data center space and “related accessory uses, including but not limited to substations.”
The applicant, 1500 Gateway Venture, LLC, is seeking to rezone an 83.6-acre parcel located between Cowan Boulevard and Plank Road (U.S. 3) and running along Interstate 95 from Planned Development-Medical Center to Industrial to allow for the data center use.
The parcel is not included in the Technology Overlay District that was approved by City Council early this year for the purpose of “promoting the development of technology centers in areas of the City Fredericksburg where existing or new infrastructure could adequately support high-technology industrial development.”
A special use permit is required to allow for water-cooled data center buildings and to exceed the maximum building height allowed in Industrial zoning.
According to the project narrative, “the Project cannot use potable water for permanent industrial cooling – and specifically seeks temporary/bridging potable water as well as permanent reuse water use for industrial cooling purposes.”
The general development plan shows three 90-foot data center buildings and one 50-foot data center building, each with a “generator/equipment yard” attached located to the rear. The taller buildings and the generators are located along I-95.
The plan includes 19.6 acres of open space, which amounts for about 23.5% of the total acreage and exceeds the minimum 10% required in Industrial zones. According to the proffer statement, the applicant will convey some of the open space to the city at its request at no cost.
The Planning Commission’s motion to recommend denial in July included a statement finding that the proposed location of substation to transmit power to the buildings was not in conformance with the city’s Comprehensive Plan. Commissioners also expressed concern with the potential proximity to Hugh Mercer Elementary School of transmission lines to the project.
On August 26, City Council discussed and ultimately did not act on a request from the applicant to extend the period during which it could appeal the Planning Commission’s decision related to the substation. The following day, the applicant’s attorney, Charlie Payne, withdrew the appeal, stating that the applicant intended to revise the proffers and the general development to address the Planning Commission’s concerns regarding the substation and transmission lines.
According to the newly submitted project narrative, an existing Dominion transmission substation located one mile away off Powhatan Street “will likely” have sufficient capacity to power the Gateway project. The applicant also worked with energy consultants ERM to study potential transmission line routes from this existing substation and according to the October 2025 report, identified a route that does not travel near the elementary school.
The project narrative states that the applicant “commits that no transmission line may connect to the Project’s substation facility where such transmission line corridor is, or is planned to be, routed along the property boundary of or through an existing City-owned school or park located within one (1) mile of the Project.”
Other changes to the proffers and the general development plan since the original submission include:
Removing the open loop water cooling system and conforming to the Technology Overlay District’s cooling standards
Flipping the generator yards so they face I-95
Proffering four of the land bays to the city for open space use
Dropping the height of data center building #4 from 90- to 50-feet to facilitate screening from adjacent residential uses
Building all four lanes of the extended Gateway Boulevard
Conforming with the clean energy goals of the Technology Overlay District
Contributing $200,000 to the city school division’s career and technical education program
Mixed-Use Development at 2105 Princess Anne Street

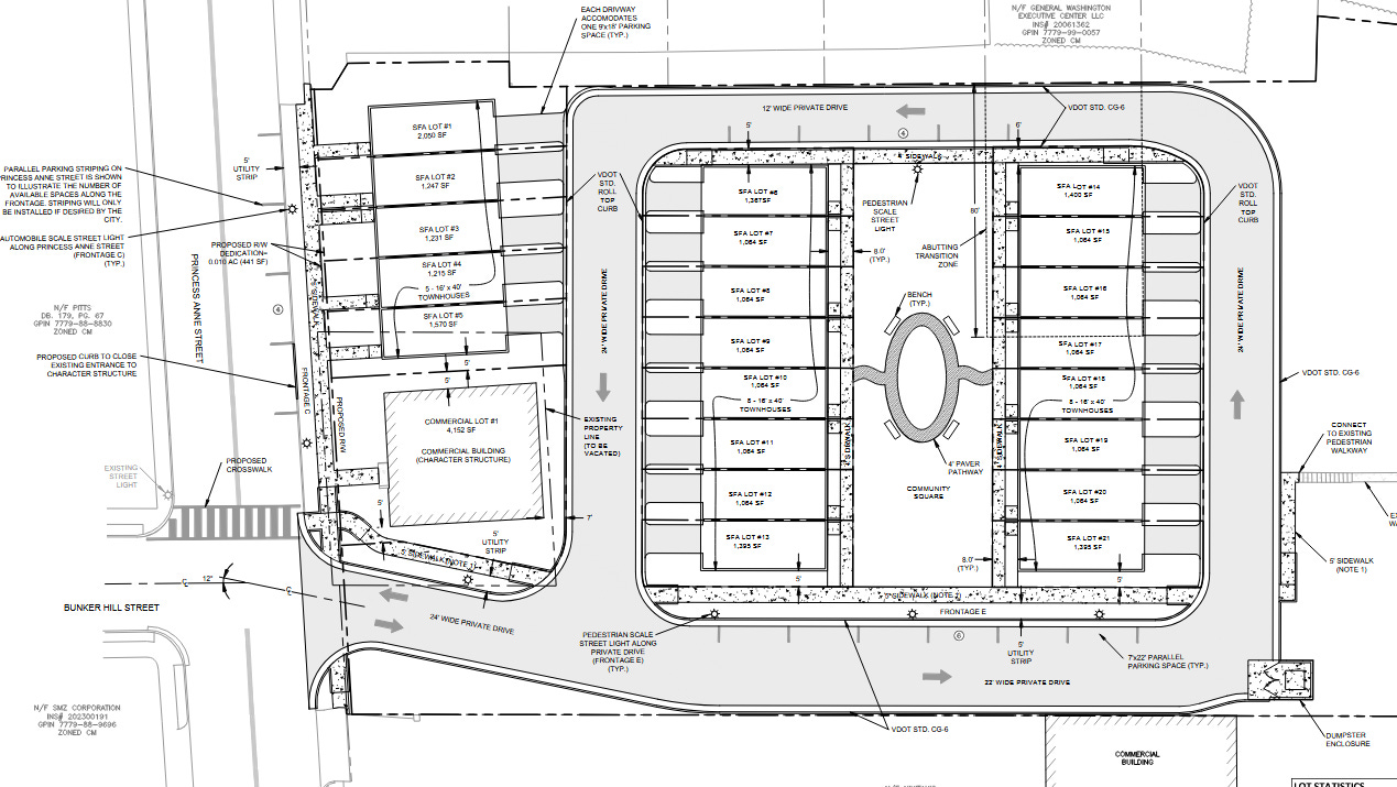
The Planning Commission’s December 10 meeting will also include a public hearing on a plan to build 21 single-family attached dwellings on an undeveloped parcel surrounding an existing structure at 2105 Princess Anne Street.
The plan also includes the adaptive reuse of the existing 1939 building at that address—a character structure known as the “Filling Station”—into an office.
According to the project narrative, the 21 dwellings are permitted by-right under the existing Creative Maker zoning, but the property owner and applicant, Past LLC, is seeking a special exception permit to decrease the minimum lot size allowed by the city’s Unified Development Ordinance, and a special use permit to allow for a building height of up to four stories.
The narrative states that after multiple meetings with city staff to discuss this project starting in November of 2024, “it was the Applicant’s conclusion that the enclosed design of the Project complements this area the best and encourages affordable living units, which is consistent with the City’s Comprehensive Plan.
Each of the dwellings will have at least one driveway parking space, according to the general development plan. The project includes a new community square in the middle of the residences and there will be a connection from Princess Anne Street to the bicycle/pedestrian trail along Caroline Street, with a public access easement.
“The Applicant is also amenable to providing an outdoor bike rack within the Project,” the narrative states.
Local Obituaries
To view local obituaries or to send a note to family and loved ones, please visit the link that follows.
Support Award-winning, Locally Focused Journalism
The FXBG Advance cuts through the talking points to deliver both incisive and informative news about the issues, people, and organizations that daily affect your life. And we do it in a multi-partisan format that has no equal in this region. Over the past year, our reporting was:
First to break the story of Stafford Board of Supervisors dismissing a citizen library board member for “misconduct,” without informing the citizen or explaining what the person allegedly did wrong.
First to explain falling water levels in the Rappahannock Canal.
First to detail controversial traffic numbers submitted by Stafford staff on the Buc-ee’s project
Our media group also offers the most-extensive election coverage in the region and regular columnists like:
And our newsroom is led by the most-experienced and most-awarded journalists in the region — Adele Uphaus (Managing Editor and multiple VPA award-winner) and Martin Davis (Editor-in-Chief, 2022 Opinion Writer of the Year in Virginia and more than 25 years reporting from around the country and the world).
For just $8 a month, you can help support top-flight journalism that puts people over policies.
Your contributions 100% support our journalists.
Help us as we continue to grow!
This article is published under Creative Commons license CC BY-NC-ND. It can be distributed for noncommercial purposes and must include the following: “Published with permission by FXBG Advance.”












My prediction is that now that the Data Center industry has the City Council they bought and paid for, this will sail through 7-0 no matter what the public input is.
We received an important update about draught conditions in the Fredericksburg Advance. Do data centers make sense if we may not shower or do laundry? Water Park in Spotsylvania? Perhaps caution is necessary.